Радуйтесь, общая площадь нового ТЦ «Привокзальный» выросла в 13 раз (Перепост с сайта сочинской архитектуры)
Замечательный автор и профессионал Анжела Аджар выложила материал по ТЦ «Привокзальный». Стройка была заморожена в течение нескольких лет. Попрев под баннером года три, каким-то чудесным образом будущий ТЦ снова стал хорошим, законным и очень нужным нашей администрации.
Читайте на Архитектуре: arch-sochi.ru/2016/08/raduytes-obshhaya-ploshhad-novogo-tts-privokzalnyiy-vyirosla-v-13-raz/
Для ленивых текст размещу здесь тоже, только фотки и гиперссылки будут не все.
На мой непрофессиональный взгляд, самое главное здесь то, как автор прослеживает судьбу ТЦ, которая, оказывается, начиналась с разрешения на два этажа.
Вот, пожалуйста: www.elite-towers.ru/projects/privokzalniy/ Это Проектная декларация на строящийся объект:«Торговый центр», расположенный по адресу: г. Сочи, Центральный район, ул. Горького (по состоянию на 31 мая 2013 года).
Но перейдём уже к тексту Анжелы:

И вот пошла история недостроя:





Печально, что у автора нет сомнений в том, что многоэтажный ларёк с клетушками будет построен. И я с ней солидарна…
Может, хоть молодёжь доживёт до тех времён, когда городскую среду позволят проектировать и претворять проекты в жизнь специалистам.
Читайте на Архитектуре: arch-sochi.ru/2016/08/raduytes-obshhaya-ploshhad-novogo-tts-privokzalnyiy-vyirosla-v-13-raz/
Для ленивых текст размещу здесь тоже, только фотки и гиперссылки будут не все.
На мой непрофессиональный взгляд, самое главное здесь то, как автор прослеживает судьбу ТЦ, которая, оказывается, начиналась с разрешения на два этажа.
Вот, пожалуйста: www.elite-towers.ru/projects/privokzalniy/ Это Проектная декларация на строящийся объект:«Торговый центр», расположенный по адресу: г. Сочи, Центральный район, ул. Горького (по состоянию на 31 мая 2013 года).
Но перейдём уже к тексту Анжелы:
В Сочи к концу 2017 года на один крупный торговый центр станет больше! Самострой, напротив железнодорожного вокзала, на углу улиц Московской и Горького, теперь планируют достраивать?!
За три года, пока недостроенное строение стояло затянутое бутафорскими баннерами, жители города успели привыкнуть к большим объёмам будущего торгового центра.
Скоро нам сделают «подарок». На оживлённых, загруженных транспортом улицах Московской, Горького и Роз откроется новый семиэтажный магазин с небольшим количеством парковочных мест. Арендная плата за землю и налоги будут пополнять бюджет города, а мы будем стоять в многочасовых пробках и искать средства в городском бюджете на строительство очередной транспортной развязки и парковки под привокзальной площадью.

Директор департамента архитектуры, градостроительства и благоустройства администрации г. Сочи Александр Зачитайлов поведал журналистам о ходе строительства торгового центра «Привокзальный»:
«БЫЛИ ПРОБЛЕМЫ С ФИНАНСИРОВАНИЕМ, ПРОБЛЕМЫ ЮРИДИЧЕСКОГО ХАРАКТЕРА У ЗАСТРОЙЩИКА. НА ДАННЫЙ МОМЕНТ ВСЕ ЭТИ ПРОБЛЕМЫ РЕШЕНЫ. ПО ОТКОРРЕКТИРОВАННОЙ ПРОЕКТНОЙ ДОКУМЕНТАЦИИ ПОЛУЧЕНО РАЗРЕШЕНИЕ НА СТРОИТЕЛЬСТВО. ТО ЕСТЬ СЕЙЧАС ОНИ ЕГО БУДУТ ДОСТРАИВАТЬ».
Странно читать такие комментарии от директора профильного департамента. Жители города знают, что этот объект был признан самостроем и возведение здания было приостановлено.
И вот пошла история недостроя:
Администрацией города в 2010 году было выдано разрешение № RU23309-1384 на строительство двухэтажного торгового центра с подземным этажом, площадью застройки 810,0 кв.м и общей площадью 1498,0 кв.м. Из-за превышения этажности и границ застройки строительство объекта было приостановлено.
Застройщик к 2012 году незаметно для всех в центре города умудрился построить железобетонный каркас четырёхэтажного объекта (три высоких надземных + один подземный этаж, размеры в плане 66,0 м. х 42,0 м.), в разы превысив разрешённую площадь застройки.
Администрация города в судебном порядке требует снести самострой. По решению суда строительство объекта в 2012 году останавливают. Недостроенный объект вносят в реестр зданий и сооружений возведённых с нарушением градостроительного и земельного законодательства города Сочи.
Опять незаметно для всех застройщик продолжает строительство и возводит со стороны улицы Роз железобетонный каркас четырёхэтажного объекта (три высоких надземных + один подземный этаж), размеры в плане 24,0 м х 24,0 м.

Вопрос о сносе недостроенного строения неоднократно поднимается в Арбитражном суде Краснодарского края. 16 апреля 2013 года было вынесено решение о сносе незаконной постройки. 22.08.2013 г. Арбитражным судом Краснодарского края был выдан исполнительный лист серии АС №006304016, на основании которого 16.10.2013 г. Сочинским межрайонным отделом судебных приставов УФССП по Краснодарскому краю было возбуждено исполнительное производство № 66216/13/72/23.
Конец 2013 года. У городских властей на руках исполнительный лист на снос незаконной постройки, но то, что происходит дальше нормальному человеку не понять. Сплошной фарс. Никто ничего не сносит. Самострой просто закрывают баннерами.
Возможно, на тот момент администрация города не обладала достаточными правовыми рычагами, чтобы снести этот объект. Но год назад были введены более жёсткие критерии для признания объекта самовольной постройкой. Один из них — нарушение градостроительных и строительных норм и правил, даже если они несущественны. Этот закон был инициирован администрацией города Сочи. Казалось бы, все карты в руки.
Но через три года заявитель (администрация города Сочи) отказывается от ранее заявленных требований и производство по делу №А32-25682/2012 прекращают. Администрация города кардинально изменила свои требования и заключила с ответчиком мировое соглашение.
Нет слов. Оказывается, можно строить что хочу и где хочу, надо просто уметь договариваться. Теперь на этой территории появится объект, площадь застройки которого 3732,03 кв.м (напомним первоначально было 810 кв.м — это в 4,5 раза больше по площади запстройки), общая площадь: 20116,57 кв.м (первоначально: 1498 кв.м — эта цифра превышена в 13 раз).
Площадь тротуаров и зелёных насаждений сократили до минимума. Видимо администрация города, заботясь о нас, предлагает всем гулять в торговых центрах, поэтому местами ширина тротуара достигает пары метров.

Плотность застройки и количество новых зданий, возведённых за последние несколько лет на небольшой территории, пугают. Как увеличивают площадь застройки уже понятно, а вот как «соблюдаются» нормы и правила пожарной безопасности можно увидеть невооружённым глазом.

Здание торгового комплекса «Привокзальный» попадает в охранную зону железнодорожного вокзала, который является памятником архитектуры федерального значения и визитной карточкой нашего города. Поэтому немаловажен внешний облик нового здания и сомасштабность к исторической среде (хотя она уже изуродована гигантским рекламным баннером).
Планировка нового «современного» ТЦ тоже удивляет. Это просто крытый рынок с кучей маленьких магазинчиков и длинными узкими коридорами, здесь всё направлено на выжимание из площади максимальной выгоды.
Почему нижний этаж не решается в виде крытой галереи, которая защитит от непогоды и от яркого солнца или создать просторные атриумы с верхним светом.

История с этим объектом лишний раз доказывает, что городом управляют люди, которые не любят горожан. Новый торговый центр, естественно, будет выполнен в соответствии с единым архитектурным обликом, но кто вернёт сочинцам захваченное общественное пространство и убитую городскую среду?
Полюбуйтесь на единый архитектурный по улице Роз со стороны улицы Горького -«Пахомовский китч», плакать хочется. Где здесь гармония? Как вы себя ощущаете в такой среде? Вот это мы оставим потомкам.

Надо строить, не только чтобы появлялись новые здания и создавались рабочие места, надо творить, формировать городскую среду, делая город лучше, удобнее и красивее.
Печально, что у автора нет сомнений в том, что многоэтажный ларёк с клетушками будет построен. И я с ней солидарна…
Может, хоть молодёжь доживёт до тех времён, когда городскую среду позволят проектировать и претворять проекты в жизнь специалистам.



Комментарии (102)
RSS свернуть / развернуть— А патамушта денег на снос в бюджете нет…
Как удивительно везет некоторым самовольщикам — на снос их объектов денег нет, а на все остальные есть… особенно есть на те, где все квартиры уже проданы…
Yabeda
кажутся чем-то из области фантастики.
semenova
Yabeda
semenova
Вот, правда, одно «творение» вспомнила — бюветик от ООО «Татнефть»… доррррогой, собака, получился правда…
Yabeda
27062014
И на проекте нового рынка тоже была парковка нарисована… а теперь там её нет…
Yabeda
27062014
semenova
Yabeda
Так что мож и прав Иваныч: переоборудуют цоколь под парковку.
semenova
прибыльныйэффективныйкрышуемыйуспешный эвакуаторный бизнес…Yabeda
А вообще, мне вот интересно: займут там тротуары под выгрузку? Оживлённая трасса с движением общественного транспорта с трёх сторон.
semenova
«Атриум» же вон оставили без выгрузки… и никого не е… не беспокоит...)
Yabeda
Вот что значит не быть шоппером. :(
Что-то мне сейчас посказывает, что на месте ТЦ прекрасно бы смотрелась семиуровневая парковка «Привокзальная». :))
Отбою бы не было.
semenova
1 ибо дорого
2 я же на 1-5 минут поставлю раком поперёк дороги никому не помешаю, а там ездить по парковке парковаться по людски надо будет
Shizo
semenova
А у нас многоуровневые парковки без такого симбиоза не приживаются...)
Yabeda
У «Стерео» — очень бойкая парковка. :))
semenova
Но бесплатность плохо переносится нашими сити-бизнесменами…
Yabeda
romashKAL
Или вы про архитектурную составляющую?
semenova
romashKAL
Других «архитекторов» не вижу.
semenova
по состоянию на 29.08.2016 являются:
ЧХЕТИАНИ АНЗОР ГРИГОРЬЕВИЧ, он же директор и
ШЕВЧЕНКО ЕВГЕНИЙ ВЛАДИМИРОВИЧ
file:///C:/Users/gg/Downloads/1092366006303_996516240536109.pdf
наймит проектировщика-архитектора.
romashKAL
А они ничего не будут этого делать…
Надо смириться и ждать какого-нибудь благолепия… :)))
semenova
www.ecopolis.su/3/index.html
romashKAL
semenova
semenova
Shizo
А в новой будет всякий хлам гламурный :/
McGee
IvanIvanovich
Хотя там мелочёвка будет. Бусики и ракушки папуасы вручную перетаскают. Идиоты.
semenova
IvanIvanovich
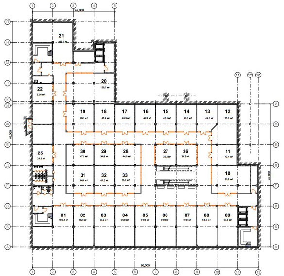
semenova
Вот план цокольного этажа. Похоже на парковку?
Позаимствовано у того же автора:
arch-sochi.ru/2012/10/stremitelnaya-zastroyka-vokrug-privokzalnoy-ploshhadi-v-sochi/
2012 год. Вовсю кипит работа отнюдь не над вторым и последним этажом ТЦ. Однако в проектной декларации середины 2013 их по-прежнему два.
Не, ваще никакой коррупции.
semenova
antadler
semenova
Apvelling150
kaktus
semenova
Apvelling150
semenova
ActiveKSM
Shizo
semenova
skopi
Про верхние этажи (офисы) — даже и думать боюсь, что там будет такое востребованное у вокзала.
semenova
мда… об этом я не подумала)))
skopi
kaktus
arch-sochi.ru/2011/02/predstavlenyi-proektyi-mnogoyarusnyih-i-ploskostnyih-parkovok/
Бгг. :))
semenova
Staruha
Apvelling150
semenova
Apvelling150
semenova
Yabeda
Staruha
semenova
Staruha
А… красивая ещё!
semenova
толи водятся, толи очередная понторезка)
скорее второе )
Nitro
semenova
VVE_Rost
Staruha
27062014
Staruha, эти многочисленные ТЦ на Навагинской, Московской, Горького и пр.множество ТЦ, магнитов в непосредственной близости от Вашего «нормального» с какого перепуга стали НЕНОРМАЛЬНЫМИ????
romashKAL
Staruha
Только покупателей там с гулькин нос, поскольку перебор с ТЦ в центре получился.
romashKAL
Staruha
semenova
Staruha
semenova
kaktus
liberalis
Nikitoss
Этаками темпами скоро так и будет дибилы б… ь)))
gena-73
semenova
Какой ужас и позор — и вправду нет предела падению.
Верю, что администрация бескорыстно разрешила все нарушения, а как же иначе?!
scorp_man
semenova
Или пока радуйтесь, что не заселили? А то с утра жильцы лохи, как дёрнут унитазы, город поплывёт...))) вся надежда на хапок. А последствия потом пусть другие разбирают)))
gena-73
порой кара бывает очень страшной…
так что ждите «господа»:)
nuport
Из-за проблемы с парковкой в центре я сама скорее поеду в Моремолл и спокойно бесплатно там припаркуюсь, чем сунусь в центр, где непонятно, где парковаться, или надо платить за это.
Мне кажется, все владельцы ТЦ и магазинов в центре должны скинуться на бесплатные паркинги, т.к. иначе они так тихо и загнуться)))
Поэтому смысл нового ТЦ для меня прямо загадка.
skopi
semenova
scorp_man
Надеюсь дожить. :)
semenova
VVE_Rost
Но что градостроительный план Сочи об этих всех мнениях скажет?
semenova
А потому – ворочу, чего хочу.
VVE_Rost
Припоминаю, был заявлен…
Наверное, залётные и «монтировали».
Наверное, и деньги уплочены были.
Э-хе-хе… Не может такого быть!
semenova
Не проверял инфу, да и не знаю – как. Хотя вопрос интересный, а Сучков весьма понаторел в таких делах…
VVE_Rost
Видимо был ранее, потом подкорректировали под самозастрой и выдали новенькое разрешение… как-то так
romashKAL
Mitrios
В итоге я конечно не знаю что там переделали, скорректировали и получили в итоге разрешение на строительство, но решения судов о признании этого новодела самостроем так и не отменено. Это же просто плевок в правосудие какое-то. Причем надо отдать должное АС Краснодарского края — грех на душу никто не взял — самостроем признали, мировое соглашение отказались утверждать, иск о расторжении договора о сносе не удовлетворили.
Но все, что выше — просто цирк какой-то.
Robert
semenova
HMEL
pic
ZohanDvir
liberalis
А тех, кто таки построил, решением суда приговаривают к сносу — как мамашу двух детей-инвалидов, в Адлере помойму…
Yabeda
горожане не любят сами себя.
или наоборот?
любят только себя?
)))
достаточно оценить балконы, подъезды, жЫлые гаражи, пристройки, «палисадники», парковочные места во дворах и тэпэ.
zhdann
Limmo
Только зарегистрированные и авторизованные пользователи могут оставлять комментарии.