Строительство морских терминалов в Сочи продолжается
Для возрождения некогда популярных на сочинском взморье морских «такси» в ходе подготовки к Олимпиаде будут созданы все условия. В рамках «Программы строительства олимпийских объектов и развития города Сочи как горноклиматического курорта» объекты морской транспортной инфраструктуры Сочи будут полностью обновлены. Федеральный центр в лице государственного заказчика ФГУП «Росморпорт» ведет работу по обустройству в Сочи нескольких пассажирских терминалов — в Адлерском районе, в Лазаревском, Лоо, Дагомысе, Мацесте, Хосте. В основном речь идет о воссоздании прежних причалов, но в ряде случаев, как например, в Дагомысе и Мацесте, появятся абсолютно новые терминалы.
Первым в списке программы находится причал возле Адлерского курортного городка, строительство которого было завершено в прошлом году. По данным Сочинского филиала ФГУП «Росморпорт», завершены строительно-монтажные работы и на морском терминале в Лазаревском. Возведение остальных стартовало в конце прошлого года и находится в разных стадиях строительства. На причале в районе курортного городка в Адлере начинается освоение территории площадки строительства. Акватория обследована водолазами, начался демонтаж старых конструкций. На терминалах в Лоо и Дагомысе также ведутся подготовительные работы, завозится специальная техника и строительные материалы.

Строительные работы на большинстве обновляемых причалов ведет генподрядное предприятие из Новороссийска — ООО «Корус», в том числе и морского терминала «Хоста». Каркас этого гидротехнического сооружения уже практически готов и предстает взору всех, кто этими погожими днями любуется морем. По словам руководителя проекта Юрия Никулина, всю работу строителей увидеть и оценить, к сожалению, невозможно. Над морской гладью – лишь видимая, но малая часть конструкций. В морское дно вонзаются несколько десятков свай длиной от 13 до 23 метров, на создание «тела» терминала уходят сотни тонн металлических и железобетонных конструкций. Их своевременный подвоз, кстати, одна из самых больших проблем. По загруженным сочинским дорогам это не всегда возможно, поэтому в ряде случаев, как, например, в Хосте, грузы к месту будущего портопункта приходится доставлять только морем.

На хостинском причале на сегодняшний день выполнена примерно половина от всего объема работ. По контракту завершение объекта запланировано на ноябрь, но генподрядчик настроен на досрочное окончание строительства терминала.
Первым в списке программы находится причал возле Адлерского курортного городка, строительство которого было завершено в прошлом году. По данным Сочинского филиала ФГУП «Росморпорт», завершены строительно-монтажные работы и на морском терминале в Лазаревском. Возведение остальных стартовало в конце прошлого года и находится в разных стадиях строительства. На причале в районе курортного городка в Адлере начинается освоение территории площадки строительства. Акватория обследована водолазами, начался демонтаж старых конструкций. На терминалах в Лоо и Дагомысе также ведутся подготовительные работы, завозится специальная техника и строительные материалы.

Строительные работы на большинстве обновляемых причалов ведет генподрядное предприятие из Новороссийска — ООО «Корус», в том числе и морского терминала «Хоста». Каркас этого гидротехнического сооружения уже практически готов и предстает взору всех, кто этими погожими днями любуется морем. По словам руководителя проекта Юрия Никулина, всю работу строителей увидеть и оценить, к сожалению, невозможно. Над морской гладью – лишь видимая, но малая часть конструкций. В морское дно вонзаются несколько десятков свай длиной от 13 до 23 метров, на создание «тела» терминала уходят сотни тонн металлических и железобетонных конструкций. Их своевременный подвоз, кстати, одна из самых больших проблем. По загруженным сочинским дорогам это не всегда возможно, поэтому в ряде случаев, как, например, в Хосте, грузы к месту будущего портопункта приходится доставлять только морем.

На хостинском причале на сегодняшний день выполнена примерно половина от всего объема работ. По контракту завершение объекта запланировано на ноябрь, но генподрядчик настроен на досрочное окончание строительства терминала.



Комментарии (38)
RSS свернуть / развернутьfire-fly
Diver
Это в Хосте снято, вчера.
DoctorAngelicus
fire-fly
DoctorAngelicus
DenisIrskiy
DoctorAngelicus
DoctorAngelicus
fire-fly
DoctorAngelicus
fire-fly
DoctorAngelicus
fire-fly
DoctorAngelicus
fire-fly
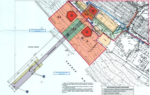
морской терминал морского порта Сочи с созданием береговой инфраструктуры для осуществления морских пассажирских перевозок (Дагомыс).
Проектируемый портопункт представляет собой малый морской вокзал, предназначенный для обслуживания пассажиров местных (пригородных) линий, с причалом, способным принимать суда длиной до 60 метров. Единовременная вместимость вокзала — 463 человека.
Проектируемые объекты:
— административно-хозяйственное здание общей площадью 120 м;
— здание морского вокзала — общая площадь 233 м2;
— павильон с залом ожидания 233м;
— комплектная трансформаторная подстанция
— привокзальная площадь.
На привокзальной площади выделены следующие зоны:
— зона набережной;
— проход к причалу;
— зона зеленых насаждений, распределенная по всей территории проектирования.
В состав главного здания морвокзала входят следующие помещения: вестибюль, кассовый зал, зал ожидания, служебные помещения.
На привокзальной площади и набережной устанавливаются малые архитектурные формы: скамьи, светильники, декоративный фонтан.
Примерно так:
DoctorAngelicus
fire-fly
DoctorAngelicus
Katerina
Объектов порядка трехсот от Лазаревского до Поляны. По мере возможностей поситим, посмотрим. По проекту, повторяю, все выглядит цивильно.
DoctorAngelicus
fire-fly
DoctorAngelicus
cat
DoctorAngelicus
bescker
Есть. Разработан НИИ Урбанистики, утвержден Минрегионом РФ.
DoctorAngelicus
bescker
DenisIrskiy
DoctorAngelicus
DenisIrskiy
DoctorAngelicus
AlexABel
Семен Семеныча Горбункова подъемным краном в такой как раз погрузили. Кажется «Волга» назывались? А дизеля ходили да, кстати, они могли подходить к берегу и с носового трапа высаживать прямо на пляж. Пару раз видел такую высадку в районе пляжей на цирке. Ну и в Пицунде прямо на пляж высаживали, там причалов не было.
DoctorAngelicus
bescker
DoctorAngelicus
bescker
DoctorAngelicus
GeoSochi
Только зарегистрированные и авторизованные пользователи могут оставлять комментарии.